0988706411
Chiêm Ngưỡng Mẫu Biệt Thự Trắng Hiện Đại Mặt Tiền 11m |
|
| Chủ đầu tư: | Địa điểm: |
| Loại hình: BIỆT THỰ 3 TẦNG | Chi phí dự kiến: |
| Số tầng: 3 | Diện tích: 11x20m |
| Phong cách kiến trúc: | |
| Đơn vị thiết kế: | Năm thực hiện: |
Mảnh đất có mặt tiền rộng đến 11m là một không gian lý tưởng cho một ngôi biệt thự với kinh phí không quá lớn. Chúng vừa đủ để phô diễn những vẻ đẹp hiện đại nếu bạn khéo léo lựa chọn cho mình một mẫu thiết kế phù hợp.
Vậy một mẫu thiết kế phù hợp sẽ là một mẫu thiết kế như thế nào?
Để giúp các bạn giàu có thêm trong từ điển lựa chọn chúng tôi sẽ giới thiệu đến các bạn biệt thự hiện đại mặt tiền 11m. Đây là mẫu biệt thự phù hợp với mẫu đất có mặt tiền 11m với 2 mặt tiền.
Vậy nên bạn nào đang có nhu cầu tìm kiếm một mẫu biệt thự có các thông số tương tự thì hãy để ý đến mẫu thiết kế này nhé!. Và các bạn cũng nên lưu ý là chúng tôi có thể điều chỉnh mẫu thiết kế phù hợp với mong muốn của các bạn.
Một ngôi nhà đẹp sẽ để lại nhiều ấn tượng cũng như kích thích sự vui vẻ và tinh thần người ở. Vì vậy, tầm nhìn thẩm mỹ của một ngôi nhà trong thị trường xây dựng hiện nay là một điều rất quan trọng. Vậy hãy cùng xem tầm nhìn thẩm mỹ của mẫu biệt thự mà chúng tôi sắp giới thiệu có gì đặc biệt nhé!

Nhìn vào ngôi biệt thự với góc nhìn từ trên cao xuống ta sẽ thấy ngôi nhà ngự tiền trên một mảnh đất với 2 mặt tiền rất vuông vắn. Với mảnh đất có diện tích rộng rãi và kết cấu như thế này thì rất phù hợp cho những kiểu nhà biệt thự.
Và cũng với bản chất là 2 mặt tiền thì đây cũng chính là ưu điểm nếu như bạn biết tận dụng địa hình. Nhưng cũng sẽ có thể là nhược điểm nếu không biết chọn mẫu thiết kế phù hợp.
Với địa hình này ngôi biệt thự 3 tầng đã trở nên đẳng cấp hơn bởi các kiến trúc sư đã tận dụng cả 2 mặt tiền để kiến tạo lên ngôi nhà.
Các kiến trúc sư đã vận dụng mảnh đất một cách rất thông minh khi chọn kết cấu hình chữ L cho ngôi biệt thự. Với kết cấu hình chữ L ngôi biệt thự đã có thể thỏa sức mình phô nét đẹp với cả 2 mặt tiền.
Tuy nhiên nếu không nhìn kĩ có lẽ sẽ rất khó để nhận ra đây là một ngôi biệt thự có kết cấu chữ L. Bởi các kiến trúc sư đã vận dụng nó theo hướng cách điệu rất mới mẻ.
Ngôi biệt thự được chia làm 3 phần với phần trung tâm nằm sau 2 phần còn lại. Đây là một điếm gây nên sự mới lạ cho ngôi biệt thự. Và một điểm khác khiến người nhìn nhầm lẫn với kết cấu chữ L của ngôi biệt thự nữa đó là gara để xe với phần mái che nắng đấu với phần hông ngôi biệt thự. Các kiến trúc sư đã tận dụng không gian rất tốt khi sử dụng phần mái che như một ban công thu nhỏ của tầng 2. Chính điều này đã góp phần đưa ngôi biệt thự tiến đến gần hơn với thế giới, tạo nên một không gian mở thoáng và rộng cho ngôi biệt thự.

Nhìn vào bản vẽ mặt bằng thì dễ để nhận ra rằng đây là một biệt thự rất sang trọng được thiết kế theo phong cách hiện đại. Đặc trưng của phong cách hiện đại thời nay là hạn chế các chi tiết cầu kì, hướng đến sự đơn giản nhưng đẳng cấp.
Chính vì vậy với mẫu thiết kế này các kiến trúc sư đã sử dụng các khối hình học như chữ nhật, vuông,... và sắp đặt chúng tạo nên một mẫu hình riêng biệt.
Bạn có thể dễ dàng nhận ra về tầm nhìn tổng quan chỉ có những khối trụ, bức tường ghép lại theo ví trí, kích thước khác nhau nhưng lại tạo nên vẻ đẹp rất sang trọng cho mẫu thiết kế.
Phong cách hiện đại của ngôi biệt thự còn đến từ màu sắc của mẫu thiết kế. Khi mà mẫu thiết kế chủ yếu sử dụng 3 tone màu đang là xu hướng hiện nay là trắng, xanh dương, và vàng. Các kiến trúc sư đã hòa màu theo tone sáng. Điều này đã đem đến một sự kết hợp rất mới lạ. Màu vàng và xanh là hai tone màu nóng lạnh tương phản nhưng lại được dung hòa bằng màu trắng. Sắc màu được chọn cũng rất cân đối đã giúp 3 màu sắc này bổ trợ nhau rất tinh tế. Chúng đã giúp ngôi nhà trở nên sáng và thoáng hơn rất nhiều.

Ngôi biệt thự được lợp theo kiểu mái Thái nhưng được ứng dụng cách điệu. Theo đó, phần đầu và phần bên của ngôi nhà được lợp mái Thái với độ nghiêng vừa phải vừa giúp chống nắng tốt vừa giúp cho nước mưa không đọng lại trên mái. Một đặc điểm mà mái thái mang lại nữa chính là tạo nên một không gian mềm mại và quyến rũ cho ngôi nhà. Riêng phần trung tâm của ngôi biệt thự thì mái bằng được sử dụng tạo nên độ cứng cỏi cho ngôi biệt thự.
Một đặc điểm giúp ngôi biệt thự toát lên mình vẻ đẹp khỏe khoắn chính là những bức tường được xây dựng rất kiên cố. Nhưng không dừng lại ở đó các kiến trúc sư đã khắc họa nét đẹp uyển chuyển cho ngôi biệt thự khi dùng những đường kẻ ngang cho khu vực tường tầng 1 và tầng 3. Những đường kẻ này tuy rất quen thuộc nhưng trong sự kết hợp này chúng đã mang đến sự uyển chuyển cho mẫu thiết kế.
Đối với những ngôi nhà phố mang phong cách hiện đại, việc hệ thống gương được ứng dụng như một điểm sáng cho ngôi biệt thự. Bởi lẽ bản chất của gương thường rất sang trọng. Trong mẫu biệt thự này gương được sử dụng trong các hành lang và hệ thống cửa không chỉ giúp ngôi nhà trông đẳng cấp mà còn giúp lấy sáng tốt. Bên cạnh hệ thống gương vào ban đêm hệ thống đèn vàng sẽ giúp ngôi nhà mang vẻ đẹp ấm áp, rất phù hợp cho không khí quay quần.
Bên cạnh việc dùng gương để giải quyết độ sáng cho ngôi biệt thự. Các kiến trúc sư cũng rất chú trọng vào việc chăm sóc không khí môi trường cho gia chủ. Chính vì vậy mà các chậu cây cảnh đã được bố trí. Chúng đã đem đến vẻ đẹp thân thiện và tươi mát cho ngôi biệt thự.
Với một ngôi nhà có tầm nhìn thẩm mỹ đẹp như vậy thì bố trí công năng sẽ ra sao?
Mời các bạn cùng theo dõi!
| ==>> Xem thêm: Khám phá mẫu thiết kế nhà đẹp tại Hồ Chí Minh 3 tầng 160m2 |

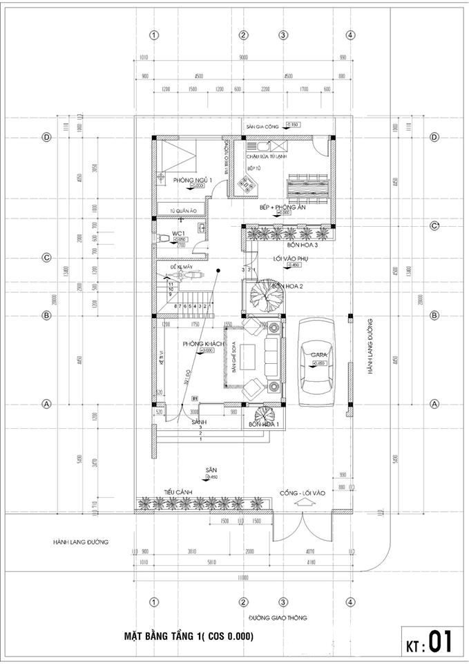
Tầng một có 2 lối vào một lối vào cửa chính và một lối vào bằng cửa phụ. Đối với lối vào cửa chính ngay khi bước chân vào bạn sẽ đến với không gian phòng khách rất sang trọng với bộ ghế sofa lớn.
Tiếp đến bạn sẽ bắt gặp cầu thang dẫn lên tầng. Tại đây bạn sẽ thấy có một không gian để xe máy rất đặc biệt. Theo đó xe máy sẽ được dắt vào bằng cửa phụ. Như đã giới thiệu ở trên là biệt thự có một gara oto nhưng được xây dựng như một nơi che nắng chứ không kín như một căn phòng. Vì vậy, sẽ rất dễ mất xe nếu để xe máy ở đây. Và không gian để xe oto được thiết kế bên chân cầu thang là một cách bố trí rất tinh tế.
Tiếp theo đó là WC và phòng ngủ. Và để phục vụ cho nhu cầu ăn uống thì không gian bếp + nhà ăn sẽ được mở ra. Việc bố trí không gian tầng 1 như trên sẽ rất thuận tiện cho việc tiếp đãi khách. Bởi lẽ khu bếp và phòng khách trong cùng 1 tầng sẽ giúp các tầng còn lại riêng tư hơn. Chúng cũng thuận tiện cho việc tiếp đãi khách đến nhà.

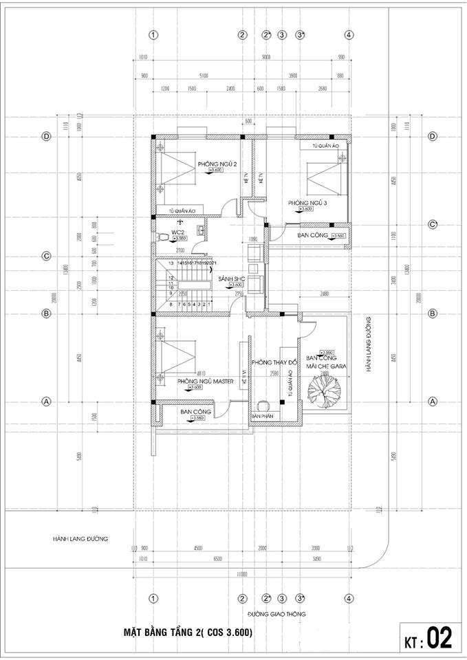
Không gian tầng 2 chuyên dụng cho việc nghỉ ngơi khi được bố trí đến 3 phòng ngủ và 1 WC. Kế bên phòng ngủ master chính là không gian thay áo quần. Điểm nhấn của không gian tầng 2 chính là ban công mái che gara. Với phần ban công này không gian ngoài trời của ngôi nhà sẽ được mở rộng.

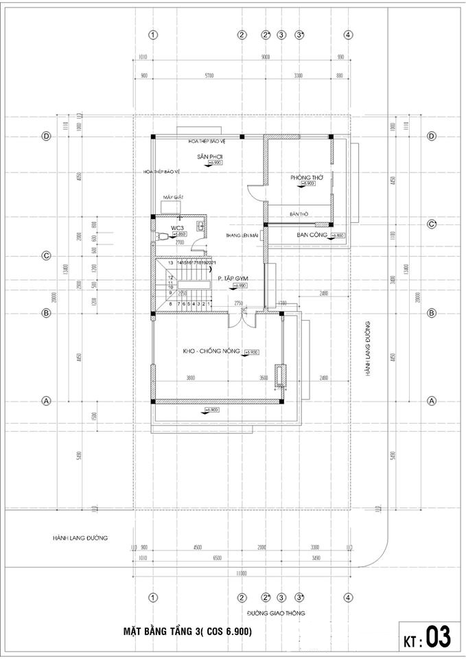
Tầng 3 được thiết kế rất chu đáo và phục vụ các nhu cầu còn lại cho gia chủ. Trong đó, sẽ bao gồm một không gian thờ- đây là một sự bố trí rất phù hợp với văn hóa Việt. Nơi cao nhất là không gian cho việc thờ tự linh thiêng và tôn kính.
Tiếp đến là khu vực sân phơi được bọc quanh bằng họa thép bảo vệ giúp lấy gió tốt hơn.
Nhằm hướng đến nhu cầu thể thao cho các thành viên thì kế bên cầu thang chính là phòng tập gym. Và kế bên phòng tập gym chính là khu nhà kho. Với phòng kho này thì các kiến trúc sư đã tận dụng vừa là nơi chứa đồ nhưng cũng là không gian chống nóng cho tầng 2.

Với kết cấu công năng như trên, ngôi biệt thự đã cho thấy một nghệ thuật bố trí rất khoa học. Chỉ với 3 tầng nhưng đầy đủ các phòng chức năng phục vụ cho nhu cầu sinh hoạt, thể thao, tâm linh,... của gia chủ.
Trên đây là những thông tin bạn cần biết về mẫu biệt thự hiện đại mặt tiền 11m. Nếu bạn thích mẫu thiết kế nhà này hãy liên lạc ngay với chúng tôi nhé! Và đừng quên rằng chúng tôi sẽ điều chỉnh theo ý kiến của các bạn.
Mục lục
Xem hướng nhà
Xem tuổi xây dựng
