0988706411
Thiết kế biệt thự 2 tầng 110m2 đẹp nức tiếng ở quê |
|
| Chủ đầu tư: Anh Đang | Địa điểm: Nam Định |
| Loại hình: Mẫu biệt thự 2 tầng đẹp | Chi phí dự kiến: |
| Số tầng: 2 Tầng | Diện tích: 110m2 |
| Phong cách kiến trúc: Tân Cổ Điển | |
| Đơn vị thiết kế: Thiết Kế Nhà Đẹp Á Âu | Năm thực hiện: 2020 |
Mẫu biệt thự 2 tầng 110m2 được thiết kế theo phòng cách tân cổ điển đã mang lại nhiều cảm xúc cho cả chủ đầu tư và kiến trúc sự bởi sự tinh tế, ấn tượng và sang trọng. Đây là phương án 2 mà công ty thiết kế chúng tôi thiết kế cho gia đình anh Đang ở Nam Định. Căn biệt thự thiết kế theo phòng cách kiến trúc tân cổ điển đã được cả chủ đầu tư và các chuyên gia trong ngành đánh giá cao. Để hiểu rõ hơn, chi tiết hơn về kiến trúc và cách bố trí công năng của mẫu biệt thự 2 tầng 110m2 mời các bạn tham khảo những hình ảnh phối cảnh 3D cũng như cách bố trí công năng tiện nghi và khoa học trong bài viết dưới đây nhé.
Những mẫu biệt thự tân cổ điển ra đời từ thế kỷ 19 tại Châu Âu và đã dần dần có tầm ảnh hưởng sâu rộng trên thế giới trong đó có cả Việt Nam. Ở Việt Nam trước đây Pháp đã mang kiến trúc tân cổ điển với cách thiết kế và xây dựng hoàn toàn mới mẻ đậm chất phương tây tạo nên những công trình tiêu biểu còn tồn tại cho đến bây giờ. Nhưng đối với các mẫu biệt thự 2 tầng 110m2 kiến trúc tân cổ thì bây giờ mới thực sự phát triển được xây dựng phổ biến trên khắp đất nước.

Bản chất của những mẫu biệt thự đẹp kiến trúc tân cổ điển đó chính là sự đơn giản hóa của trường phái cổ điển Châu Âu xa hoa, lộng lẫy, hạn chế những chi tiết trang trí quá cầu kỳ và phô trương để mang đến vẻ đẹp thanh lịch, mềm mại, nhẹ nhàng và có sự phù hợp hơn với chức năng nhà ở. Chính nhờ vào vẻ đẹp duyên dáng, khiêm nhường mà vẫn có sự sang trọng, nên kiến trúc tân cổ điển đã được nhiều gia chủ yêu thích cái đẹp tìm đến, mang đến vẻ đẹp khác biệt so với những mẫu nhà truyền thống, đơn giản ở Việt Nam.
Anh Đang đã tìm đến văn phòng của Công ty thiết kế chúng tôi để trình bày những yêu cầu của mình về ngôi nhà trên mảnh đất ở Nam Định. Vị trí xây dựng của ngôi nhà gần với đường lớn nên có sự thông thoáng. Do đó anh Đang muốn công trình của mình mang vẻ đẹp sang trọng với phong cách tân cổ điển. Với diện tích mảnh đất rộng hơn 130m2 nhưng anh Đang có mong muốn thiết kế một ngôi nhà có diện tích 110m2. Phần diện tích còn lại sẽ được dành để làm khoảng sân nhỏ trước nhà, cổng, hàng rào tạo nên khuôn viên nhà ở đẹp đẽ và thoáng đãng. Sau khi trao đổi với kiến trúc sư thì hai bên đã thống nhất lựa chọn phương án thiết kế biệt thự 2 tầng 110m2 theo phong cách tân cổ điển theo ý tưởng cũng như yêu cầu của chủ đầu tư.
Ngoại thất của mẫu biệt thự 2 tầng được thiết kế theo phong cách tân cổ điển. Nếu như bạn là người yêu thích sự sang trọng, tinh tế, thích sự mềm mại thì phong cách kiến trúc tân cổ điển sẽ là sự lựa chọn hoàn hảo và đầy tinh tế. Tân cổ điển là phong cách kiến trúc tinh tế với vẻ đẹp thách thức qua thời gian. Do đó những công trình mang phong cách kiến trúc này sẽ luôn trường tồn với thời gian. Đây chính là một trong những ưu điểm của kiến trúc nhà ở được thiết kế theo phong cách này.
Ở mẫu thiết kế này, các hình khối, thức cột được bố trí đang đối với nhau tạo nên sự thống nhất chặt chẽ. Sử dụng hoa văn, phào chỉ trang trí được lồng ghép tinh tế ở trên các thức cột tạo điểm nhấn duyên dáng và dịu dàng. Sảng chính được thiết kế rộng với phần mái sảnh vô cùng bề thế và nguy nga.

Ngôi biệt thự 2 tầng 110m2 được thiết kế nổi bật với hệ mái thái sang trọng và bề thế. Hiện nay, mái thái đang nhận được sự yêu thích của rất nhiều các chủ đầu tư. Bởi nó không chỉ khiến cho không gian trở nên đẹp với các viên ngói được xếp chồng lên nhau, màu sắc bắt mắt mà còn phù hợp với thời tiết khí hậu ở nước ta. Phần mái ngói được thiết kế đua theo hình chữ L vô cùng ấn tượng, tôn lên được vẻ đẹp sang trọng của căn biệt thự. Thiết kế mái thái với độ dốc vừa phải giúp thoát nước tốt và chống nóng một cách hiệu quả.
Kiến trúc sư đã lựa chọn màu trắng làm gam màu chủ đạo cho mẫu thiết kế này. Từ lâu, màu trắng đã được biết đến là gam màu của sự trong trắng, nhẹ nhàng và sạch sẽ. Ngày càng được ưa chuộng hơn trong các lối kiến trúc tân cổ điển và cổ điển. Cùng với màu trắng làm chủ đạo, thì chúng tôi đã có sự khéo léo khi biến đối giữa nhiều tông màu khác nhau để mang đến nhiều trải nghiệm thú vị hơn cho không gian mặt tiền. Đó là màu vàng đậm của trục cửa chính, mái thái màu nâu đỏ bắt mắt. Với sự kết hợp của tông màu đậm nhạt khác nhau đã tạo nên một mặt tiền với điểm nhấn ấn tượng, tránh được sự nhàm chán.
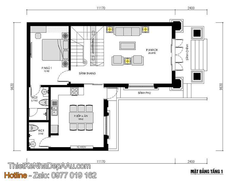
Bản vẽ mặt bằng công năng của mẫu biệt thự 2 tầng 110m2 vẫn được kiến trúc sư ưu tiên sự tiện nghi, thoải mái của các thành viên trong gia đình lên hàng đầu, đặc biệt là bố mẹ của anh Đang. Bên cạnh đó vẫn cần phải đảm bảo yếu tố về phong thủy, mang đến sự bình an cho chủ nhà. Cụ thể cách bố trí mặt bằng công năng của mẫu biệt thự tân cổ điển này như sau:

Tầng 1 của căn biệt thự được kiến trúc sư bố trí mặt bằng công năng bao gồm phòng khách, phòng bếp ăn, phòng ngủ có nhà vệ sinh khép kín, phòng wc chung. Không gian phòng khách được thiết kế ngay sau sảnh chính của ngôi nhà đây chính là không gian để đón tiếp các vị khách quý, cũng được xem như là bộ mặt ngôi nhà. Do đó mà kiến trúc sư cũng đã lựa chọn các đồ trang trí nội thất theo phong cách tân cổ điển để có sự thống nhất với kiến trúc ngoại thất. Phòng bếp – ăn cũng được thiết kế thoáng, rộng, có cửa số lớn và hệ thống hút mùi giúp không gian luôn được sạch sẽ, thoải mái và không bị ám mùi. Thiết kế phòng ngủ ở tầng 1 dành cho ông bà với nhà vệ sinh khép kín tiện lợi trong việc đi lại, sinh hoạt của ông bà.

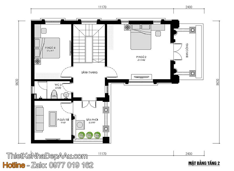
Bố trí công năng tầng 2 bao gồm 2 phòng ngủ, phòng giải trí, 1 nhà vệ sinh chung và sân phơi. Tầng 2 với 2 phòng ngủ được thiết kế cho vợ chồng anh đang và con trai của anh hai vợ chồng. Với mỗi phòng đều được thiết kế thông thoáng, có đồ nội thất tiện nghi, hiện đại đảm bảo được một không gian sống đầy đủ, tiện nghi trong việc sinh hoạt. Phòng giải trí được thiết kế ở vị trí riêng để không làm ảnh hưởng để sự sinh hoạt, riêng tư của các thành viên khác.
===> Tham khảo ý tưởng thiết kế mẫu biệt thự vườn 2 tầng 120m2 đẹp lung linh.
Chúng tôi vừa gửi đến các bạn mẫu thiết kế biệt thự 2 tầng 110m2 của anh Đang ở Nam Định. Hy vọng sau khi tham khảo mẫu thiết kế biệt thự này các bạn đã có thêm được những ý tưởng thiết kế tuyệt với cho căn biệt thự mơ ước của mình. Các bạn cũng có thể tham khảo thêm nhiều mẫu nhà đẹp sang trọng và ấn tượng đang được nhiều chủ đầu tư yêu thích tại Website của công ty. Chúc các bạn sẽ sở hữu được một ngôi nhà như ý muốn của mình nhất.
Mục lục
Xem hướng nhà
Xem tuổi xây dựng
