0988706411

Mẫu biệt thự 1 tầng ở nông thôn với thiết kế mang tính thẩm mỹ cao và bền vững, chắc chắn hiện được rất nhiều gia đình yêu thích và lựa chọn làm thiết kế cho ngôi nhà mơ ước của mình. Trong các mẫu nhà được Kiến Trúc An Nhiên giới thiệu từ trước đến nay đây vẫn là sự lựa chọn đông đảo gia chủ yêu thích. Hiện nay những căn biệt thự vườn 1 tầng được thiết kế đẹp, hiện đại khác rất nhiều so với những căn nhà 1 tầng mái ngói truyền thống, đảm bảo các nhu cầu sinh hoạt một cách tốt nhất.
Tính khả thi trong xây dựng với chi phi thấp cũng như việc tiện lợi trong quá trình sinh sống của gia chủ luôn được đề cao trong các bản vẽ thiết kế. Căn biệt thự 1 tầng ở nông thôn đơn giản với thiết kế khoa học lại vô cùng tiết kiệm chi phí đầu tư xây dựng, hãy cùng đơn vị chúng tôi chiêm ngưỡng, khám phá chi tiết thiết kế công trình ấn tượng này để có thêm những ý tưởng mới cho việc chọn lựa ngôi nhà mơ ước cho gia đình mình nhé.
Diện tích ô đất đặc thù hợp về hướng cho anh Thông bởi gia đình anh cũng khá duy tâm nên đã chọn mua mảnh đất này từ nhiều năm trước hiện nay mới tiến hành xây dựng, mặt tiền khu đất rộng 40m và chiều sâu dài đến hơn 60m2. Với lợi thế đất xây dựng rộng, gia đình anh Thông muốn tận dụng tối đa không gian để xây dựng ngôi nhà mát mẻ, đầy đủ tiện nghi, ngoại thất bắt mắt và ấn tượng hợp với thời đại. Vì thế kiến trúc sư đã lấy ý tưởng từ những mẫu nhà mái thái đang rất được ưa chuộng hiện nay kết hợp với kiến trúc hiện đại để không gian sống được thiết kế tối giản mang lại sự thoải mái tiện nghi.

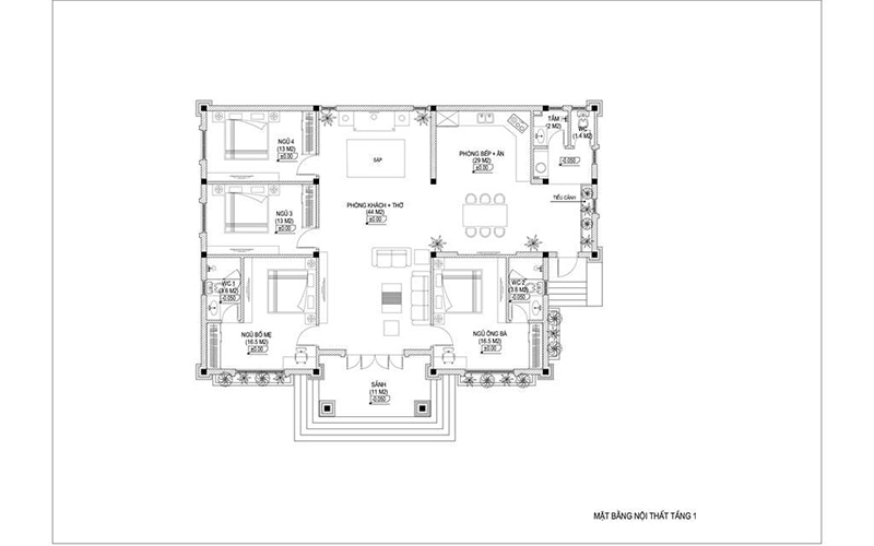
Để xây dựng công trình kiến trúc biệt thự 1 tầng ở nông thôn cần phải tính toán chi tiết để đảm bảo kinh phí trong khả năng của gia đình. Điều anh Thông chú trọng chính là phần không gian sinh hoạt phía trong phải đầy đủ tiện nghi cho vợ chồng anh và các con. Diện tích thiết kế của căn nhà khá rộng nhưng lại chạy dọc theo mảnh đất, anh Thông muốn thiết kế 1 phòng khách ở ngoài cùng phòng bếp phía trong và phòng thờ được đạt ở nơi trang trọng nhất để không làm mất đi lòng tôn kính với tổ tiên của làng quê. Thiết kế hai phòng ngủ của con cái ở góc trong cùng. Hành lang để di chuyển trong không gian ngôi nhà với chức năng đảm bảo sự thông thoáng và thuận tiện, có lối đi ra sân sau để phơi đồ tiện cho việc sinh hoạt.
Do căn biệt thự 1 tầng có kiến trúc đăng đối, mặt tiền lớn để điều phối ánh sáng đèn kết hợp với ánh sáng tự nhiên làm cho không gian không gian thêm đồng điệu hơn. Tổng chi phí cho việc thiết kế và thi công không quá cao cùng với đó là thời gian xây dựng ngăn khiến gia đình anh hết sức hài lòng với đơn vị thiết kế và xây dựng với chuyên môn kỹ thuật cao. Ngay khi nhận yêu cầu tư vấn thiết kế của chủ đầu tư, đội ngũ kiến trúc sư của chúng tôi đã tiến hành khảo sát hiện trạng, lấy ý kiến của gia đình anh từ đó đưa ra phương án thiết kế khoa học, phù hợp nhất với mong muốn của gia đình. Không chỉ có thế công trình nhà anh còn được đảm bảo về các quy định an toàn khi thiết kế, phù hợp với cảnh quan xung quanh căn nhà cũng như các quy định về xây dựng tại địa phương.

Bậc tam cấp của nhà anh Thông được thiết kế khá cao để tương xứng với phần chân móng cũng như phần trụ cột chính ở hai bên căn nhà. Những mảng tường bên hông ngôi nhà tạo sự ấn tượng với những khối mảng tường màu vàng hồng, thiết kế nhiều đường chỉ kẻ ngang, phần cửa phụ phía hiên bên hông, tạo cảm giác thông thoáng và cuốn hút.
Kiến trúc căn nhà cấp 4 kiểu biệt thự được xử lý khá vững chắc và có tính thẩm mĩ cao. Kết hợp với hệ thống cửa sổ lớn hệ thống bồn hoa sân vườn tiểu cảnh trước mặt tiền mang đến cảm giác gần gũi thiên nhiên, tận hưởng nguồn không khí trong lành, cuộc sống an nhiên. Phối cảnh kiến trúc cảnh quan đơn giản, mặt tiền được thiết kế đẹp mắt, hứa hẹn một không gian sống tiện nghi và thuận tiện cho gia đình anh chủ đầu tư.
Công trình hiện đại và khoa học phù hợp với đại đa phần các gia đình Việt. Công năng sử dụng tuyệt vời tối ưu hóa được về không gian. Kinh phí đầu tư xây dựng và thiết kế hợp lý, giúp nhiều gia đình đảm bảo về phần tài chính không bị quá thâm hụt hay nợ nần sau khi xây nhà.
Xem thêm: Những Mẫu Thiết Kế Biệt Thự Đẹp

Xem Thêm: Bản Vẽ Nhà 1 Tầng Mái Thái Hiện Đại 4 Phòng Ngủ Mới Nhất
Trong bản vẽ mặt bằng đã thể hiện chi tiết cách bố trí công năng, nội thất căn biệt thự 1 tầng ở nông thôn để mọi người có thể dễ dàng xem, đánh giá, hoặc bố trí theo. Thiết kế nhà là việc vô cùng quan trọng, phương án thiết kế nhà chình là yếu tố cốt lõi chi phối đến khả năng sinh hoạt, đời sống vật chất cũng như tinh thần của các thành viên trong gia đình có tiện nghi thoải mái không. Nếu như gia đình bạn không có kinh nghiệm hoặc không có chuyên môn về thiết kế kiến trúc, thì việc thuê đơn vị tư vấn thiết kế chuyên nghiệp để lấy ý tưởng sau đó hoàn thiện hồ sơ thiết kế là vô cùng cần thiết. Hãy liên hệ ngay với chúng tôi, nếu như bạn đang mong muốn một phương án thiết kế nhà khoa học nhất, phù hợp với điều kiện kinh tế của gia đình cũng như đảm bảo kết cấu theo cách bền vững nhất.
