0988706411

Thiết kế nhà 2 tầng 80m2 hiện đại đang dần trở thành xu hướng xây dựng được các chủ đầu tư quan tâm bậc nhất hiện nay. Chính vì vậy, trong bài viết dưới đây chúng tôi sẽ gửi đến cho quý khách hàng những mẫu tham khảo ý tưởng từ ngôi nhà mẫu được chúng tôi thiết kế cho gia đình anh Ngọc. Mục đích của bài viết này dành cho qúy khách hàng tham khảo và giới thiệu đến quý khách hàng những công năng sử dụng tuyệt vời khi lựa chọn khởi công xây dựng ngôi nhà đẹp hiện đại, tiện nghi với chi phí phù hợp với gia đình.
Trên khu đất có diện tích sử dụng lớn các kiến trúc sư đã đưa ra ý tưởng để có thể thiết kế nhà 2 tầng 80m2 hoàn toàn dựa theo mong muốn và phong cách của chủ nhà đại gia. Căn nhà được thiết kế xây dựng theo kiểu chữ L với khoảng trống phía trước nhà dành làm phần sân vườn, có thể để xe rộng rãi. Thay vì thiết kế theo phong cách cổ điển, mẫu biệt thự 2 tầng lựa chọn theo đuổi phong cách hiện đại, trẻ trung đơn giản và tinh tế được loại bỏ tối đa các chi tiết hoa văn rườm rà rối mắt thay vào đó là sự kết hợp của các khối cột trụ tròn và các mảng hình khối cửa sổ lớn hình vòm mang tới sự hài hòa trong thiết kế giữa nét kiến trúc hiện đại và nét đẹp cổ điển đặc trưng của thời kỳ phục hưng. Phù hợp với lối sống của đại đa phần các gia đình với độ tuổi từ già tới trẻ.

Biệt thự 2 tầng với mặt tiền được thiết kế theo phong cách hiện đại nhấn nhá đan xem hoa văn trang trí tinh xảo mang tạo điểm nhấn, nét riêng biệt cho ngôi nhà. Công trình xây dựng với quy mô 2 tầng phía trên là hệ thống mái thái lợp ngói màu xám tro đẹp hài hòa với màu trắng của sơn tường. Tổng thể căn nhà được xây dựng bởi các khối tường trắng xám với các nét kẻ ngang xung quanh căn nhà làm cho kích thước của căn nhà có vẻ lớn hơn so với thực tế, các bức tường ở mặt tiền nhà đều chọn sơn nước, mục đích tạo tầm nhìn sáng khi nhìn vào từ phía ngoài, cùng với đó việc đảm bảo kết hợp tông màu với cảnh quan xung quanh tạo nên phối cảnh tuyệt vời cho công trình kiến trúc .
Đầu tiên các cổng và tường rào được thiết kế vuông vức bên trong tường rào được trông hàng rào xanh mướt bao quanh tạo cảm giác hài hòa với thiên nhiên hơn. Thiết kế vuông vức của căn nhà 2 tầng 80m2 theo phong cách hiện đại, trên cổng vẫn sử dụng mái che lợp ngói. Cổng nhà làm từ vật liệu sắt sơn trắng tương đối thẩm mỹ và hài hòa với căn biệt thự chữ l, mang một chút nét đẹp của những căn biệt thự châu âu với hàng rào trắng tinh. Phía trước, hệ thống tiểu cảnh bồn hoa càng tô điểm thêm sắc xanh cho tổng thể.

Xem Thêm : Các Mẫu Thiết Kế Biệt Thự Đẹp Nhất 2020
Kiến trúc sư của chúng tôi đã chọn bố trí tường rào từ các thanh sắt thay vì lựa chọn xây tường rào gạch, điều này sẽ làm tăng thêm sự thanh thoát và không hề tạo nên cảm giác tù túng bí bách. Khu vực được tạo ra bởi khoảng lùi chữ L ở căn nhà vừa đủ để tạo ra chỗ để xe ô tô rộng rãi hoặc có thể thiết kế tiểu cảnh. Thiết kế tầng 2 biệt thự chữ l có ban công phía trước có thể trồng hoa cây cảnh tăng tính thẩm mĩ cho căn nhà. Các ô cửa của căn biệt thự đều sử dụng loại cửa nhôm kính hiện đại, tạo sự hiện đại với tầm nhìn thanh thoát hơn rất nhiều do với của gỗ.
Không chỉ có tính thẩm mỹ cao, nhà 2 tầng 80m2 còn đem đến cảm nhận thoải mái không gian sống xanh, gần gũi với thiên nhiên. Bên cạnh đó công năng sử dụng tuyệt vời phù hợp với phong cách sống, sinh hoạt của những gia đình hiện đại cũng là một phần lý do để khách hàng lựa chọn thiết kế mẫu nhà chữ l 2 tầng .


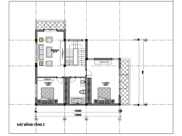
Ở bản vẽ này, kiến trúc sư đã đưa ra phương án tối ưu dành cho gia đình gồm có nhiều thành viên. Thiết kế của các căn phòng sinh hoạt luôn được chú trọng đến tính riêng tư nhưng cần đảm bảo độ thoáng sáng và điều hòa không khí để đảm bảo sức khỏe. Bên cạnh đó, đi lại trong căn nhà 2 tầng 80m2 cũng được đảm bảo không làm ảnh hưởng tới người khác. Theo bản vẽ thể hiện ở tầng trệt sẽ bố trí với căn phòng khách, tiếp theo là phòng vệ sin chung, phòng bếp, bàn ăn và khu vực giặt phơi. Ở khu vực tầng 2, căn nhà được bố trí với 3 phòng ngủ, một phòng vệ sinh, một phòng thờ ở phía trước có hướng nhìn ra ban công rất trang trọng.
Mời bạn tham khảo thêm: Mẫu Thiết Kế Biệt Thự 2 Tầng 145m2 Phong Cách Tân Cổ Điển
