0988706411

Mẫu nhà cấp 4 kiểu biệt thự với chi phí xây dựng không quá lớn phù hợp với mức thu nhập của đa số gia đình Việt kiểu mẫu. Phong cách kiến trúc đẹp lấy nguồn cảm hứng từ những ngôi nhà cấp 4 truyền thống kết hợp với những phong cách mới để tối ưu vẻ đẹp, công năng phục vụ cuộc sống con người một cách tốt nhất. Ngôi nhà với thế mạnh được xây dựng ở nông thôn, không thoáng mát, rộng rãi vì thế việc lên phương án mặt bằng cũng dễ dàng hơn. Xây nhà cấp 4 hiện nay đã trở thành xu hướng thiết kế rất phổ biến. Không chỉ hiện hữu ở vùng nông thôn mà ở thành phố, rất nhiều người cũng đã lựa chọn những mẫu nhà cấp 4 đẹp để làm thiết kế cho ngôi nhà của mình.
Nhà cấp 4 kiểu biệt thự có sự đang dạng về kiến trúc, kiểu dáng và diện tích xây dựng để phù hợp cho tất cả mọi người. Ngay từ cái nhìn đầu tiên đã chinh phục được mọi người bởi vẻ đẹp ngoại thất bề thế sang trọng, sự hài hòa trong từng chi tiết, hình khối đi liền với cách bố trí công năng giúp ngôi nhà đạt được hiệu suất sử dụng cao nhất. Một sự cách tân cần thiết để phù hợp với cuộc sống hiện đại, khi nhu cầu thay đổi từ ăn no mặc ấm sang ăn ngon mặc đẹp thì những tiêu chuẩn về thẩm mỹ, mức sống cũng thay đổi và những ngôi nhà thiết kế phục vụ con người cũng được cách tân một cách hợp lý nhất. Mẫu nhà cấp 4 kiểu biệt thự được coi là chuẩn mực cho cuộc sống sung túc của gia đình Việt ở nông thôn.

Đây có lẽ là những nhà cấp 4 kiểu biệt thự có thiết kế đẹp nhất, phổ biến nhất bởi thiết kế mái thái đẹp, vô cùng quyến rũ lại mang nhiều ưu điểm như khả năng chống nóng, chống ẩm rất tốt phù hợp với khí hậu ở các miền quê Việt Nam ,… Đây cũng là lý do tại sao những năm gần đây, những loại nhà cấp 4 mái tôn, và nhà mái bằng… thường được thay thế bằng những căn nhà mái thái hiện đại.

Tuy nhiên đây có lẽ cũng là mẫu nhà cấp 4 đẹp có mức chi phí xây dựng đắt đỏ nhất so với các loại nhà cấp 4 khác cùng với đó khi thi công cũng đòi hỏi thời gian xây dựng lâu hơn và sự phức tạp tỉ mỉ hơn trong thiết kế kiến trúc. Bên cạnh đó việc lựa chọn loại vật liệu xây dựng cũng như chọn màu phối cho nội ngoại thất cũng đòi hỏi sự khắt khe tuyệt đối mới có thể tạo nên mẫu nhà cấp 4 đẹp nhất. Mẫu nhà 3 phòng ngủ đơn giản đẹp đặc biệt phù hợp với đại đa số các gia đình Việt hiện tại với mức chi phí xây dựng không quá đắt đỏ cũng như tính tiện nghi trong sử dụng sinh hoạt và sự đồng điệu với thói quen sinh hoạt của người việt là những yếu tố làm cho ngôi nhà phù hợp với đại đa phần khách hàng Việt.
Một số ưu điểm của mẫu nhà cấp 4 đẹp khiến cho kiểu nhà này được lựa chọn xây dựng đó là bởi diện tích sử dụng rộng rãi, cùng với đó là sự dễ dàng trong việc bố trí các phòng dành cho gia đình có nhiều người hoặc nhiều thế hệ cùng chung sống. Tính thẩm mĩ của những mẫu nhà cấp 4 đẹp cũng phù hợp với gout của nhiều thế hệ khác nhau đây cũng là một điểm cộng khi lựa chọn thiết kế.
Tham Khảo : 85 Mẫu Biệt Thự Vườn 1 Tầng

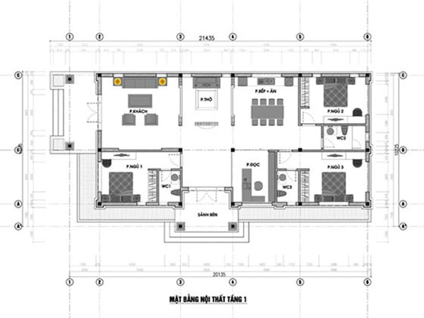
Từ nhu cầu sử dụng công năng của gia đình, kiến trúc sư đã nghiên cứu, tính toán để lên phương án bố trí phòng công năng, nội thất căn nhà cấp 4 kiểu biệt thự một cách chính xác khoa học. Không gian sinh hoạt phòng khách sang trọng, hiện đại, phòng bếp ấm cúng, phòng ngủ mang lại sự riêng tư thoải mái. Thiết kế thường thấy nhất trong các căn nhà cấp 4 3 phòng ngủ khá giống với thiết kế những của ngôi nhà cấp 4 truyền thống mái ngói 3 gian của các thế hệ trước. Lấy cảm hứng từ thiết kế của những căn nhà cổ xưa kết hợp với các yêu cầu về tính thẩm mỹ và công năng sử dụng.
Các kiến trúc sư giỏi nhất của chúng tôi đã tạo ra các phiên bản nhà cấp 4 đẹp và thân thiện nhất với mọi khách hàng. Mọi nhu cầu và ý tưởng của khách hàng đều được đội ngũ kiến trúc sư của chúng tôi cân nhắc và đưa vào bản thiết kế một cách hài hòa tự nhiên nhất .

