0988706411

Đối với những gia đình có sở hữu khuôn viên đất rộng thì việc xây dựng cho gia đình căn biệt thự nhà vườn 1 tầng là lựa chọn hàng đầu, bởi có nhiều điều kiện thuận lợi để công trình phát huy được hết công năng sử dụng và phù hợp với tổng quan không gian chung. Với sự tinh tế trong từng đường nét thiết kế kiến trúc thêm vào đó là sự thấu hiển tâm lý, nhu cầu, thói qien sinh hoạt của từng thành viên trong gia đình vì vậy phương án thiết kế căn biệt thự vườn 120m2 tối ưu nhất với gia đình anh Hùng. Phong cách thiết kế sang trọng, lịch lãm bên cạnh đó là không gian sinh hoạt thoải mái gần gũi với cây cỏ mang lại cảm giác xanh mát yên bình tốt cho sức khỏe, tinh thần của các thành viên trong gia đình bạn. Hôm nay chúng ta sẽ cùng đến tham khảo mẫu thiết kế biệt thự vườn của anh Hùng ở Thanh Hóa.
Mẫu biệt thự vườn 120m2 được xây dựng tọa lạc trên khu đất có diện tích 1000m2 mang những đường nét kiến trúc tinh xảo kết hợp kiểu mái thái hiện đại phân tầng mang tính thẩm mỹ cao, tạo điểm nhấn dễ nhận biết về phần kiến trúc. Ngôi nhà vừa mang vẻ bề thế sang trọng vừa có sự gần gũi, hài hòa thiên nhiên, một không gian nghỉ dưỡng lý tưởng. Khoảng không gian rộng lớn bên ngoài đầy nắng, gió và không khí trong lành, sự bình yên đến lạ thường.

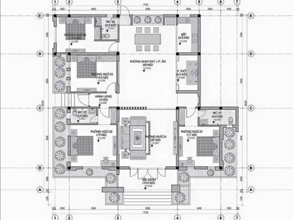
Phần tiền sảnh được bố trí xây dựng 2 cột trụ lục giác tạo nên nét mạnh mẽ vững chãi cho toàn bộ ngôi nhà. Phía trước thiết kế 1 hồ nước nhỏ xinh vừa nuôi cá như là một khu sinh thái mini còn góp phần điều hòa không khí trong căn biệt thự của gia đình. Phía sau hồ cảnh là sân chơi giải trí bố trí bàn uống trà giải trí vừa uống trà vừa ngắm cảnh hàn huyên ngắm những con cá bơi lượn dưới hồ tuyệt đẹp quả là một không gian sống thơ mộng. Tổng quan thì căn biệt thự vườn 120m2 của anh Hùng có nhiều nét độc đáo từ lựa chọn màu sơn ngoài 2 tông màu kem và xám than cho tới phối cảnh trước căn nhà tinh tế và thơ mộng.
Có thể nói đây là mẫu biệt thự vườn đẹp và phù hợp túi tiền của nhiều gia đinh nhất cho tới bây giờ. Xu hướng người kiếm tiền ở thành phố mua đất nông thôn xây biệt thự nhà vườn có sân vườn đang rất được ưa chuộng trong những năm gần đây. Đặc biệt các cán bộ sắp nghỉ hưu thì đây là một lựa chọn an dưỡng tuổi già lý tưởng, gia đình con cháu có thể sống chung cùng quây quần trong một ngôi nhà đẹp khang trang đầy đủ tiện nghi không gian sống thoáng mát không khí trong lành.

Nếu bạn yêu thích phong cách kiến trúc hiện đại, mai thái, có thể tham khảo thêm mẫu biệt thự 1 tầng 120m2 nhận được rất nhiều sự quan tâm trong thời gian gần đây để giúp bạn có thêm ý tưởng, lựa chọn phù hợp cho mẫu nhà của gia đình.
Hoạt động trong lĩnh vực xây dựng nhà ở dân dụng được khoảng 10 năm, chúng tôi nhận thấy ngày nay xu hướng xây biệt thự có sân vườn ở nông thôn rất lớn, ai cũng muốn có một căn để gia đình về nghỉ ngơi vào những ngày lễ tết hoặc nghỉ dưỡng tuổi già. Những gia đình gốc ở nông thôn thay vì chạy theo thời thế xây những căn biệt thự đồ sộ chỉ được phần bề ngoài, bên trong không được trang bị nội thất hiện đại tiện nghi, không gian không đảm bảo thay vào đó họ lựa chọn những căn biệt thự vườn 1 tầng vừa phù hợp với kinh tế gia đình lại mang đến cuộc sống có phần gần gũi bình dị nhưng ấm cúng.


85+ Mẫu Thiết Kế Biệt Thự Vườn 1 Tầng Đẹp
Công năng sử dụng của mẫu biệt thự nhà vườn là vô cùng hoàn hảo thiết kế không những tối ưu về mặt thẩm mỹ mà còn cực kì thân thiện với người sử dụng. Với thiết kế 1 tầng thì mẫu biệt thự nhà vườn đặc biệt phù hợp với những gia đình có ba thế hệ cùng sinh sống hoặc dành cho những gia đình có thâm niên công tác muốn về hưu an dưỡng không thích hợp với những căn biệt thự nhiều tầng.

Toàn bộ thiết kế của các phòng ngủ đều được bố trí cửa sổ lớn có trang bị rèm giúp điều tiết ánh sáng nhằm làm cho giấc ngủ gia chủ được thoải mái nhất cũng như lưu thông không khí để giấc ngủ sâu thoải mái tốt cho sức khỏe. Thiết kế của căn biệt thự vườn với phòng khách khá rộng,chứa tủ trang trí vừa ngăn cách với 1 bên phòng ngủ và một bên còn lại được ngăn cách bằng bức vách gỗ.
Nội thất căn biệt thự vườn 120m2 được thiết kế phía sau phòng khách là khu không gian bao gồm phòng ăn và bếp nơi cả gia đình quây quần ấm cúng, khu không gian bếp được thiết kế hiện đại tiện nghi với đầy đủ trang thiết bị theo đúng chuẩn châu Âu. Phòng ăn được thiết kế nội thất hiện đại và trang nhã. Các phòng ngủ để có phần hành lang riêng đảm bảo không gian riêng tư cho từng thành viên trong gia đình. Phía sau cùng của ngôi nhà được ông với sân phơi và vườn cây phía sau.
