0988706411

Mang thiết kế hiện đại với vẻ đẹp sân vườn đang được yêu thích nhất hiện nay phù hợp với không gian sinh sống làng quê, nông thôn, phù hợp cho các gia đình 2 hoặc 3 thế hệ đang cùng sinh sống và làm việc. Nhà cấp 4 120m2 là sự lựa chọn xây dựng không thể hoàn hảo hơn cho các hộ gia đình kiểu mẫu ở Việt Nam. Ưu điểm của mẫu thiết kế này là có chi phí đầu tư cho thiết kế và xây dựng vô cùng hợp lý phù hợp với điều kiện kinh tế của đa phần các hộ gia đình người việt, tránh thâm hụt kinh tế nợ nần nhiều sau khi xây nhà. Không chỉ tiết kiệm chi phí xây dựng và thiết kế mẫu nhà cấp 4 120m2 còn thuyết phục đa phần khách hàng bởi tính tiện nghi, công năng sử dụng tuyệt vời của nó mang lại. Không chỉ có thế vẻ đẹp trong thiết kế của mẫu nhà này mang nét đẹp hiện đại hài hòa và trang nhã, mang nét đẹp thanh bình phù hợp với vối cảnh làng quê hay vùng ngoại ô yên tĩnh .
Xây một ngôi nhà cấp 4 120m2 đẹp với chi phí dự trù khoảng khoảng 660 triệu ở vùng quê nông thôn, nếu gia đình các bạn có diện tích sở hữu đất lớn một chút thì rất dễ dàng trong việc chọn lựa những mẫu thiết kế thoáng rộng với chiều cao không quá lớn để đảm bảo sự hài hòa với cảnh quan xung quanh thiên nhiên, sân vườn bao quanh. Lựa chọn mái thái cho thiết kế của căn nhà là sự lựa chọn hoàn hảo cho khối kiến trúc không chỉ bởi tính thẩm mĩ của ngôi nhà mà còn những tác dụng tuyệt vời như chống nóng, chống thấm dột của loại mái nhà này. Bên cạnh đó việc nghe tiếng mưa rào rơi trên mái ngói cũng là trải nghiệm không thể đáng nhớ hơn của mỗi giấc ngủ ngày hè.

Mẫu nhà cấp 4 thường được xuất hiện ở những khu vực ngoại thành các thành phố lớn hoặc vùng quê. Nhưng hiện nay, mẫu nhà này được sử dụng thiết kế bởi rất nhiều người thành phố khi có điều kiện sở hữu những mảnh đất rộng. Có thể điểm qua một số ưu điểm của mẫu nhà cấp 4 120m2 như sau. Chi phí xây dựng không quá tốn kém, việc xin cấp phép xây dựng kiểu nhà này cũng vô cùng dễ dàng tại các thành phố bởi sự hài hòa trong thiết kế sẽ không hề làm ảnh hưởng tới cảnh quan của khu phố không cần xây dựng nhiều tầng nên có thể xây dựng trên mọi loại nền đất kể cả nền đất yếu, công năng sử dụng tuyệt vời, phù hợp cho các đại gia có tuổi muốn nghỉ ngơi, phù hợp với những người không thích khoa trương.

Thiết kế nhà phù hợp với gu thẩm mĩ của đa phần người việt, cũng như gu thẩm mỹ của mọi thế hệ. Ưu điểm của ngôi nhà khá nổi trội so với các mẫu nhà thiết kế nhà 2 tầng, nhà thiết kế biệt thự tầng, nhà phố… khi mà chủ nhà có thể lựa chọn thiết kế kiến trúc một cách tổng thể, kết hợp với thiết kế cảnh quan bên ngoài ngôi nhà linh hoạt, với sân vườn hồ nước nhỏ mang lại không gian sống hài hòa với thiên nhiên tốt cho sức khỏe và tinh thần của các thành viên trong gia đình.
Khoảng sân vườn chắc chắn sẽ trở thành một địa điểm lý tưởng để gia đình tổ chức tiệc nướng BBQ, hay vui đùa bên nhau đầy hạnh phúc. Nhà cấp 4 120m2 có sân vườn chính là mẫu thiết kế hoàn hảo phù hợp với khí hậu, thói quen sinh hoạt cũng như yếu tố phong thủy.
Tham Khảo Thêm: Bản Vẽ Thiết Kế Biệt Thự 1 Tầng Ở Nông Thôn

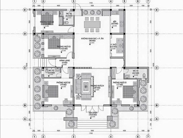
Trước hết, căn cấp 4 120m2 được thiết kế 4 phòng ngủ và 1 phòng thờ, phòng khách và phòng ăn. Đi sâu vào chi tiết ngay sau khi bước lên bậc tam cấp sẽ tới ngay phòng khách rộng đủ để tổ chức những cuộc tiếp đón nhiều người nhất. Sau phòng khách là phòng ăn và không gian bếp với trang thiết bị đầy đủ. Các phòng ngủ được sắp xếp ở các góc của ngôi nhà đảm bảo sự yên tĩnh và riêng tư tuyệt đối. Về tổng quan thiết kế của ngôi nhà là một sự thiết kế hoàn hảo phù hợp với rất nhiều mục đích sử dụng khác nhau và công năng sử dụng hoàn hảo.
