0988706411

Khi mà hiện nay diện tích đất ở đang ngày càng bị thu hẹp thì những căn hộ chung cư 30m2, nhà phố 30m2 hay nhà cấp 30m2 càng trở nên thông dụng hơn. Bởi ưu điểm lớn nhất của nó là có chi phí thi công và giá tiền hợp lý. Thế nên việc thiết kế nội thất nhà nhỏ chưa bao giờ là một bài toán dễ dàng. Nếu như không có sự khéo léo và tinh tế trong việc sắp xếp và trang trí thì không gian của bạn sẽ bị thu nhỏ và trở nên chật hẹp hơn đấy. Có thể bạn sẽ tìm thấy được những ý tưởng thiết kế nội thất đẹp của mình bởi những gợi ý của Kiến Trúc An Nhiên sau đây.
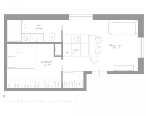
Thiết kế nội thất nhà 30m2 cho căn hộ chung cư sau của Kiến Trúc An Nhiên sẽ đem đến cho các bạn những nguồn cảm hứng tuyệt vời để có ý tưởng trong việc hoàn thiện cho căn hộ của mình một cách xuất sắc. Giúp bạn có được một căn hộ chung cư đẹp xuất sắc nhất, giúp bạn bố trí căn hộ 30m2 đẹp mắt, tiện nghi chẳng kém gì căn hộ 60m2.

Việc đầu tiên cần phải chú ý khi thiết kế nội thất căn hộ chung cư đó là cần phải có sự hài hòa và thông minh trong thiết kế, trang trí màu sắc và ánh sáng. Đây chính là yếu tố cơ bản để giải quyết bài toán cho không gian căn hộ có diện tích khiêm tốn. Mặc dù trên thực tế thì diện tích căn phòng không hề rộng ra nhưng với những thủ thuật thông minh và tinh tế sẽ giúp bạn nới rộng được không gian về mặt trực quan. Chính vì vậy mà khi các bạn nhìn vào những hình ảnh của căn hộ này thì không ai có thể nghĩ rằng nó chỉ có diện tích vỏn vẹn 30m2.

Căn hộ mang phong cách hiện đại có chút pha trộn của sự tối giản. Với cách sử dụng nội thất một cách hợp lý, bảng màu trung tính tươi sáng làm cho không gian nhỏ bé này có cảm giác rộng rãi và tinh tế hơn.

Không gian căn hộ được bố trí một bố cục hợp lý kết hợp với sự phân vùng khéo léo, để có thể tận dụng được một cách tối ưu 30m2 diện tích ít ỏi cho những chức năng và nhu cầu sử dụng.
Thiết kế nội thất căn hộ 30m2 với phòng khách

Khu vực phòng khách của căn hộ này sử dụng sofa kê ở một góc tường nhằm tiết kiệm được không gian. Với một bàn ăn nhỏ được đặt cạnh phòng khách mang lại một tổng thể thống nhất. Phòng khách bao gồm một ghế sofa, bàn trà, ghế đơn, kệ tivi và ti vi.

Bếp nấu được bố trí riêng, tách biệt hoàn toàn không gian riêng của phòng khách và phòng ngủ. Sử dụng gam màu sáng mang lại cái nhìn thoáng rộng ấn tượng cho không gian căn hộ nhỏ.

Căn bếp nhỏ nhắn, đơn giản và vô cùng đầy đủ các chức năng chính là phong cách mà căn hộ này muốn hướng đến.
Phòng ngủ chính là khu vực trung tâm, được thiết kế mở và tích hợp thêm với các chức năng khác như phòng làm việc, khi tập thể dục. Sử dụng rèm che vừa đơn giản, tiết kiệm lại tiện lợi, giúp bạn có thể phân chia được các khu vực công năng riêng biệt. Giường ngủ còn được hợp thêm các ngăn kéo chứa đồ nhằm giúp bạn có thêm nhiều không gian để lưu trữ mang đến một không gian gọn gàng và ngăn nắp.
Mặc dù chỉ với diện tích 30m2 những mẫu nhà cấp 4 này lại được đánh giá cao bởi có sự khoa học trong thiết kế, thông minh trong việc sắp xếp các đồ nội thất và nhất là cực kỳ tiết kiệm được chi phí xây dựng.


Toàn bộ căn nhà được sử dụng gam màu chủ đạo là màu trắng và màu vàng của gỗ kết hợp với đồ nội thất đơn giản, nhỏ gọn để có thể phù hợp với diện tích của ngôi nhà.

Giữa không gian phòng ngủ và phòng khách được cách nhau bởi 1 vách gỗ đảm bảo cho sự riêng tư, vừa đảm bảo được sự thông thoáng và tính thẩm mỹ cho ngôi nhà. Phòng bếp cũng được sử dụng tông màu trắng và vàng làm chủ đạo. Với một quầy bar mini nhỏ đủ cho 2 người ngồi tăng tính tiện ích.

Các đồ dùng, vật dụng hiện đại được sắp xếp, bố trí một các khoa học vừa giúp tiết kiệm diện tích, vừa có thể đảm bảo được công năng sử dụng.
Thiết kế nội thất nhà 30m2 cho nhà phố luôn hướng đến việc làm sao cho đẹp mắt và hiện đại nhất. Ngoài việc đáp ứng được các công năng sử dụng tốt nhất cho nhu cầu sử dụng của các thành viên trong gia đình thì còn phải thu hút sự chú ý cho người nhìn.
Không gian phòng khách được xem như là bộ mặt của gia chủ, nó thể hiện được cá tính, phong cách của chủ nhân. Với sự hạn chế về diện tích do đó cần phải có sự khéo léo để tạo nên một phòng khách đẹp mắt. Chỉ nên sử dụng những vật dụng, đồ nội thất có màu sáng, hạn chế bớt các chi tiết, rườm ra, rối mắt. Thay vào đó là những đồ vật đơn giản, màu sắc có sự kết hợp hài hòa giúp mang đến một không gian phòng khách thông thoáng và hiện đại.

Bộ sofa màu xanh lá làm bằng gỗ Acrylic chính là tâm điểm, điểm nhấn của không gian phòng khách này. Sàn nhà được lát đá marble màu trắng bóng tạo nên độ sang trọng, hiện đại mà cũng không kém phần tinh tế.
Bố trí phòng bếp – ăn được nối liền với phòng khách vừa tạo được sự ấm cúng cho toàn bộ không gian vừa tiết kiệm được diện tích. Phòng bếp được thiết kế dạng chữ L, trang bị đầy đủ các đồ nội thất điện tử hiện đại.

Với tủ bếp trên sử dụng gam màu trắng và tủ bếp dưới có gam màu nâu kết hợp cùng với bàn ăn bằng gỗ sồi tự nhiên giúp cho không gian nhà bếp trở nên thật sự nổi bật và thông thoáng hơn rất nhiều.
Cầu thang chính là nơi để lưu thông, di chuyển giữa các tầng với nhau do đó cần phải được thiết kế đẹp mắt, hài hòa với tổng thể không gian. Bậc thang được thiết kế bằng chất liệu gỗ công nghiệp hiện đại, lan can cầu thang bằng kính cường lực và tay cầm bằng gỗ tạo nên sự đơn giản mà lại vô cùng bắt mắt. Thiết kế phòng sinh hoạt chung cạnh cầu thang tầng 2 vì tầng 1 không gian không quá rộng.
Mỗi tầng kiến trúc sư bố trí 1 phòng ngủ để đảm bảo sự thoáng mát tiện nghi. Phòng ngủ master dành cho vợ chồng được thiết kế nội thất một cách đơn giản, gọn gàng với việc sử dụng gam màu trầm mang đến sự tinh tế và sang trọng. Vì bị giới hạn về diện tích do đó chủ nhân của ngôi nhà đã khéo léo bố trí không gian làm việc ngay tại phòng ngủ để tạo được sự thuận tiện và tối ưu nhất.

Phòng ngủ với cửa sổ cung cấp ánh sáng hữu ích cho căn phòng. Phương án thứ 2 trang trí cho phòng ngủ Master không sử dụng các họa tiết trang trí.

Tiếp theo phòng ngủ của bé thì được thiết kế với phong cách trẻ trung hơn, phù hợp với độ tuổi và tính cách của trẻ. Với tông màu trắng chủ đạo kết hợp với các đồ nội thất đơn giản mang đến nét cá tính và thông thoáng cho không gian.

Căn hộ tận dụng tối đa diện tích nhỏ gọn khoảng 30m2 thiết kế không gian sống hiện đại tiện nghi và thoáng mát. Với ý tưởng táo bạo, các kiến trúc sư đã tạo ra sự đột phát đầy mới mẻ trong việc bố trí công năng sử dụng, lựa chọn đồ nội thất tối giản thông minh. Trên thực tế, nhiều người với cá tính mạnh thích phưu lưu, muốn sở hữu căn hộ theo cách riêng và đặc biệt nhất. Xu hướng ở nhà nhỏ là một phần của cuộc sống hiện đại tại các thành phố lớn. Sử dụng những ý tưởng này vào lần tới khi bạn cần tạo ra một không gian nhỏ ấm cúng cho riêng mình.

Các nhà thiết kế tài năng đã mang đến cho căn hộ quy mô nhỏ này một phong cách trang trí tối giản sáng sủa và rộng rãi. Ngôi nhà được sở hữu bởi cặp vợ chồng trẻ với thu nhập khoảng 6 triệu và chỉ với 30 mét vuông, nó đòi hỏi phải chuyển đổi cấu trúc gần như toàn bộ để làm cho không gian đủ rộng cho hai người.

Màu sắc nhẹ và đường nét đơn giản luôn làm cho căn phòng trông rộng hơn một chút so với thực tế. Các nhà thiết kế đã sử dụng bức tranh trang trí đơn sắc tạo điểm nhấn nhỏ mà không tạo ra bất kỳ sự lộn xộn thị giác không cần thiết.

Một bên của căn phòng hiện lên với hình nền in hình đồ họa sống động, và mặt còn lại tỏa sáng rực rỡ với bảng màu trắng bóng. Sự kết hợp hài hòa màu sắc, ánh sáng là chìa khóa để tạo nên căn phòng nhỏ có chiều sâu, cảm giác tự do, thoải mái.

Rất thông minh trên chiếc giường kéo xuống cổ điển - đèn treo là một điểm nhấn thú vị mang đến sự tương phản màu sắc làm căn phòng trở nên sinh động và hài hòa.


Chiếc ghế sành điệu phong cách hiện đại được tân trang lại sau khi đã qua sử dụng phù hợp với nhu cầu sử dụng và điều kiện kinh tế của những gia đình có thu nhập không cao. Người chủ cũ của chiếc ghế phải là người có tính thẩm mỹ cao và là người có phong cách sống hiện đại



Phòng tắm có một cách tiếp cận hoàn toàn khác với phần còn lại của căn hộ. Có thể có rủi ro khi sử dụng các mẫu lớn như vậy trong một không gian nhỏ như vậy, nhưng hiệu quả ở đây là hoàn toàn tuyệt đẹp. Màu sắc gắn kết và đường nét rõ ràng tạo nên một cảm giác tuyệt vời làm hài lòng tất cả các giác quan.
Kiến trúc sư đã hoàn thành thiết kế cho một cặp vợ chồng trẻ một căn hộ nhỏ đầy đủ tiện nghi và đảm bảo được sự thoáng mát. Mỗi không gian đều khác biệt về mặt thẩm mỹ và chức năng, song chúng được kết nối một cách thông minh để thống nhất không gian tổng thể.

Diện tích sàn khoảng 35m2 vì thế phòng khách và phòng ngủ được thiết kế thông nhau và sử dụng rèm để che phòng ngủ tạo sự riêng tư, tế nhị khi sử dụng và khi gia đình có khách. Bộ sofa màu đen nổi bật phù hợp với phong cách trang trí hiện đại, làm không giân nổi bật và sang trọng. Để tối ưu kệ tivi nhỏ gọn và kệ sách treo tường làm thủ công từ những vật liệu dễ tìm và giá rẻ.

Phòng ngủ đơn lớn đủ cho 2 người sử dụng thoải mái. Điểm nhấn từ việc sử dụng tranh tường giúp xóa bỏ sự đơn điệu cho căn phòng và các mảng màu sáng tối làm căn phòng thêm phần sinh động. Rèm treo từ một hốc lõm cũng cung cấp một chút ánh sáng gián tiếp để cản phòng có cảm giác rộng hơn, không gian lý tưởng để thư giãn vào buổi tối, đèn dây treo tường ý tưởng độc đáo để tiết kiệm diện tích.

Màu sắc sống động giúp làm nổi bật phòng khách. Sàn gỗ ấm cúng, thân thiện, thảm phòng khách với họa tiết hình học đa sắc tạo điểm nhấn và tường là sự tương phản màu sắc sáng tối. Căn hộ chỉ có 30 mét vuông sàn, vì vậy những mảng màu được tạo ra thực sự tạo ra sự khác biệt lớn.



Khi khu vực sinh hoạt và ngủ có màu sắc tươi sáng hơn, phòng ăn và nhà bếp sẽ có một bảng màu tối hơn. Tủ gỗ bổ sung các vật liệu nội thất tự nhiên được sử dụng trong nhà.
Được thiết kế bởi kiến trúc sư Nguyễn Huy Hoàng căn hộ trang trí sử dụng đồ nội thất kiểu dáng mới lạ một cách táo bạo tạo ấn tượng lớn với diện tích sàn chỉ 35m2. Nó tập trung xung quanh phong cách tối giản sử dụng hệ thống điện trang trí treo tường phản chiếu ánh sáng và chứa hệ thống giải trí ở bên ngoài và khéo léo che giấu một phòng tắm ở bên trong - một cửa sổ ở trên cùng đảm bảo rằng ánh sáng tự nhiên có thể xuyên qua ngay vào không gian phòng ngủ riêng tư.


Cách bố trí nội thất, sử dụng màu sắc phản ánh tính cách của gia chủ. Đồ nội thất cổ, hàng dệt đa dạng, và ánh sáng công nghiệp kết hợp với nhau tạo ra tính thẩm mỹ hấp dẫn và thú vị. Tủ tivi trở thành vách ngăn cách với không gian phòng ăn một cách tinh tế.


Từ phòng khách có thể nhìn thấy phòng bếp một cách không hoàn toàn, điều này đảm bảo tính thẩm mỹ cho toàn bộ không gian chung. Đồ nội thất bếp được cất giữ trong chiếc tủ gỗ ngăn nắp gọn gàng tiết kiệm không gian, cửa sổ cung cấp nguồn ánh sáng cần thiết để không gian luôn sáng sủa.


Một phòng ngủ nhỏ màu trắng với sự cách điệu từ chiếc thảm màu sắc sặc sỡ và tường trang trí những họa tiết hình tròn mang đến sự thanh thoát cho căn phòng.
Cách bố trí căn hộ nhỏ 29m2 có chiều sâu nhờ màu sắc tươi mới
Căn hộ có diện tích 35m2 thiết kế cho người độc thân với việc sử dụng đồ nội thất kiểu dáng đơn giản với mục đích đảm bảo nhu cầu sinh hoạt tối thiểu. Các đồ vật được sắp xếp cực kỳ ngăn nắp và gọn gàng, không gian sáng sủa, với các vách ngăn phòng được thiết kế thông minh. Lam nhựa nối với kệ tiviminu trung tâm của không gian giữ cho khu vực sinh hoạt và ngủ tách biệt với nhà bếp và khu vực ăn uống mà không thêm bất kỳ bóng tối hoặc cảm giác khép kín. Màu pastel nhẹ và vật liệu chất lượng cao làm cho không gian gọn gàng này cảm thấy vui tươi và trẻ trung và không hề bừa bộn.



Bàn làm việc là tấm gỗ kê nhỏ gọn tối giản nhưng đảm bảo được công năng sử dụng.

Một góc nhỏ nhắm nhìn thành phố và độc sách tuyệt vời. mà bất kỳ ai cũng sẽ thích thú.

Phòng bếp ngăn nắp sử dụng chất liệu gỗ thân thiện và ấm cúng, cửa nhỏ đủ cung cấp ánh sáng cho cả căn phòng, tủ đựng gia vị thiết kế đơn giản nhưng vô cùng tiện nghi.
Trong khi ngôi nhà tiếp theo có tông màu trầm ấm nhẹ nhàng, mang đến sự thoải mái tự do khi ở trong căn hộ. Đồ nội thất kích thước nhỏ và vì thế tạo ảo giác về trần nhà cao,căn phòng có chiều sâu và nhiều không gian thoáng. Và cho dù không gian có kích thước như thế nào, một chút cây xanh không bao giờ là chiếm diện tích, thay vào đó là sự tươi mát của màu xanh và không khí trong lành. Chậu cây trên một bức tường mang lại cho ngôi nhà một ánh sáng tự nhiên tốt đẹp.

Căn phòng hướng Nam nhiều ánh sáng cung cấp sự thoáng mát. Những mảng sáng tối kết hợp nhưng không làm căn phòng tối thay vào đó là sự độc đáo, sức sống và cá tính.

Bóng đèn giữa nhà tiết kiệm điện cung cấp ánh sáng đủ cho căn phòng.

Cửa sổ lớn phòng khách được trang trí bằng rèm cửa màu trắng tránh ánh nắng gắt vào giữa trưa.

Bàn ăn đá bền đẹp nhỏ gọn phù hợp với diện tích căn phòng.









Mẫu thiết kế nội thất căn hộ có diện tích 37.5 mét vuông, diện tích này khá phổ biến hiện nay đối với các căn chung cư giá rẻ cho người lao động thu nhập thấp. Căn hộ có cảm giác khá thoáng và rộng do màu sắc và các yếu tố nội thất. Các tấm gỗ tự nhiên kết hợp với nhiều khoảng trắng cho phép ánh sáng từ bên ngoài thực sự tạo cảm giác phòng rộng hơn so với thực tế. Một nhà bếp nhỏ gọn vẫn có một góc ăn nhỏ và để nấu những bữa cơm ngon và ấm cúng mặc dù không gian không quá rộng. Phòng tắm cũng rộng đến mức đáng ngạc nhiên với gạch trắng thanh lịch và bồn ngâm sâu biến một khu vực riêng tư cửa ngôi nhà thành nơi nghỉ ngơi thư giản lý tưởng.

Căn phòng tràn ngập ánh sáng và sự đơn giản trong cách bố trí nội thất giúp căn phòng rộng hơn những gì chúng ta nghĩ về một căn hộ hơn 30 mét vuông.






Căn hộ với diện tích 39m2 sẽ làm bạn kinh ngạc khi khám phá công năng và cách bố trí nội thất. Diện tích nhỏ khiến bàn ăn được đặt giữa ghế sofa và tivi, điều này hơi khó xử xong sau nhiều tính toán, đây là phương án hợp lý nhất để căn phòng có sự thông thoáng. Nhà bếp trong không gian này không chỉ là một quán bar, và phòng ngủ ẩn đằng sau cánh cửa trượt, phòng ngủ được thiết kế khá ấm cúng và có sự riêng tư.






Tốc độ đô thị hóa tại các thành phố lớn ngày càng phát triển mạnh mẽ dẫn đến việc thu hút nguồn nhân lực từ các thành phố nhỏ vùng nôn thôn lên thành phố tìm việc làm cơ hội phát triển và cùng với đó là dịch vụ cho thuê nhà giá rẻ. Họ quen với cuộc sống đồng quê không gian rộng lớn thoáng mát và việc phải làm quen với những căn hộ 30m2 thực tế là điều không mấy dễ chịu. Nhưng với những gợi ý của chúng tôi bạn sẽ có được không gian sống tiện nghi thoáng mát với chi phí tối ưu nhất. Dưới đây là một trong nhiều cách trang trí nhà diện tích nhỏ 30m2 được chúng tôi chia sẻ.

Căn hộ rộng 30 mét vuông này sử dụng các bức tường kính bên trong để tạo ra một phòng ngủ không làm cho ngôi nhà có cảm giác nhỏ hơn.

Một khu vực ăn uống nhỏ, với những chiếc ghế lấy cảm hứng từ phogn cách tối giản, là nơi hoàn hảo cho một hoặc hai khách.

Việc sử dụng các màu trung tính , kéo dài vào nhà bếp hẹp, khiến không gian cảm thấy cởi mở và yên tĩnh hơn, mặc dù không có thêm không gian sàn. Ngay cả phòng tắm nhỏ nhất cũng cảm thấy sang trọng khi được lát bằng đá cẩm thạch trắng.

Một buồng tắm vòi sen nhỏ là giải pháp hoàn hảo cho sự sạch sẽ mà không rộng rãi.
Căn hộ tiếp theo này thực sự sử dụng cùng một sơ đồ bố trí công năng như căn hộ đầu tiên, nhưng với một số khác biệt về cách lựa chọn đồ nội thất đã cho chúng ta cảm nhận khác biệt về không gian. Chúng ta có thể thấy rằng một số yếu tố cổ điển đi kèm với một đèn chùm pha lê và đèn cây màu tím mang đền bầu không khí ấm áp.



Căn hộ có diện tích 35 mét vuông và phương án thiết kế được kiến trúc sư đưa ra đó chính là việc tối ưu không gian sử dụng đồ nội thất thông minh kích thước phù hợp với diện tích căn phòng.

Trong trường hợp này, phòng hẹp nhất là phòng khách có đủ không gian cho một chiếc ghế dài thoải mái. Thay vì chiếm những mét vuông quý giá với một khu vực ăn uống riêng biệt, thiết kế này sử dụng một thanh gỗ có thể gấp gọn để tối ưu không gian và nhu cầu sử dụng của gia chủ cũng không quá nhiều khi chỉ ở một mình.


Phòng ngủ nhỏ nhưng cửa sổ lớn giữ cho nó không có cảm giác đóng kín. Kệ đôi như một đầu giường, làm tăng thêm sự quan tâm và một chút lưu trữ hữu ích.

Phòng tắm lát gạch trắng bóng chúng giữ cho không gian không bị chật chội.
Sự đồng bộ trong việc sắp xếp công năng và phân chia không gian diện tích hợp lý mang đến hiệu quả lớn khi tạo cảm giác căn phòng rộng hơn diện tích vốn có của nó. Khu vực sinh hoạt chính sáng sủa và cởi mở, với một nhà bếp nhỏ, không gian ăn uống và phòng khách tất cả được kết nối với nhau. Những bức tranh nhỏ màu sắc tươi mới, hình dáng ngộ nghĩnh mang đến cho nó sự phong phú mà không gian gia đình thường cố gắng đạt được.

Đồng hồ treo tường độc đáo làm căn phòng trở nên dễ thương và xóa đi sự đơn điệu, màu sắc với tone màu ấm áp cũng góp phần mọi người có cảm giác gần nhau hơn.




Thay vì lắp đặt tủ quần áo chiếm nhiều không gian thì việc sử dụng mắc treo tường mang đến giải pháp tiết kiệm hơn và chủ căn phòng cũng không quá chú trọng đến hình thức vì thế không quá nhiều đồ để cần tới một chiếc tủ.

Trên đây là tổng hợp những cách thiết kế nội thất nhà nhỏ đẹp được chúng tôi tổng hợp. Nếu bạn thấy một trong những cách trang trí phù hợp với không gian sống của gia đình và muốn được tư vấn chí tiết hơn hãy liên hệ với Mr.Hoàng theo số hotline 0973.556.236 để được tư vấn và hỗ trợ, tư vẫn miễn phí.
