0988706411

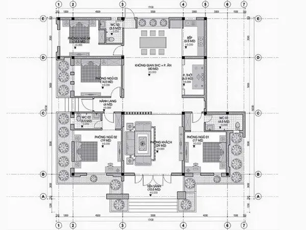
Ngôi nhà cấp 4 phong cách Châu Âu với diện tích 120m2 chia làm 4 phòng ngủ và 1 phòng thờ là một ngôi nhà lý tưởng phù hợp với văn hóa lối sống gia đình nhiều thế hệ ở Việt Nam. Một phòng ngủ cho ông bà, 2 phòng ngủ cho con cái hoặc 1 phòng ngủ cho bố mẹ. Không gian phòng thờ dành cho việc thờ cúng gia tiên không thể thiếu, được thiết kế đặt ở vị trí trang nghiêm, yên tĩnh và cùng với đó chi phí xây dựng không quá cao phù hợp với điều kiện kinh tế của nhiều gia đình cũng là 1 lý do khiến cho những ngôi nhà cấp 4 phong cách Châu Âu được rất nhiều gia đình lựa chọn làm bản thiết kế cho ngôi nhà của mình.
Nhà cấp 4 phong cách Châu Âu đang thực sự được yêu thích và được xây dựng rộng rãi ở Việt Nam để thay thế kiểu nhà cấp 4 truyền thống đáp ứng tốt hơn các nhu cầu sinh hoạt của gia đình và cá nhân. Một không gian nghỉ dưỡng hoàn hảo, nơi gia đình đoàn tụ ấm cúng và trải nghiệm những tiện nghi hiện đại nhất được kết hợp hài hòa với thiên nhiên. Nếu gia đình bạn thuộc kiểu mẫu những gia đình có thu nhập trung bình hoặc cao hơn trung bình một chút thì có lẽ mẫu nhà này là sự lựa chọn không thể tuyệt vời hơn dành cho bạn.

Đối với nhiều người không thực sự tìm hiểu kĩ về kiến trúc Châu Âu có lẽ khi nghe tới nhà cấp 4 phong cách Châu Âu họ sẽ tưởng tượng ra những căn nhà có vẻ ngoài không bề thế độ sộ với chi phi đầu tư lớn. Nhưng trên thực tế các kiến trúc sư sử dụng những ưu điểm phù hợp với đặc tính về địa lý, văn hóa và thu nhập trung bình để thiết kế mẫu nhà phù hợp mang điểm nhấn của phong cách Châu Âu. Ngôi nhà có kiểu dáng, trang trí bắt mắt cùng với đó là không gian chật chội tù túng và sự thiếu tiện nghi khi sử dụng tuy nhiên hiện nay thiết kế kiến trúc đã khác rất nhiều so với những năm trước, hiện nay đa phần những căn nhà cấp 4 hiện đại đều được thiết kế vô cùng hiện đại , đơn giản, tinh tế tối ưu hóa về không gian và được tích hợp nhiều tiện nghi có sẵn trong căn hộ.
Bản vẽ kiến trúc nhà cấp 4 kiểu Châu Âu được thiết kế với phần hình dáng bên ngoài mang phong cách đơn giản phần nào đó có nét cổ điển vẫn giữ được của kiểu thiết kế nhà cấp 4 truyền thống. Phong cách thiết kế này thực sự không quá mới lạ nhưng lại rất hài hòa với cảnh quan xung quanh và những ngôi nhà quanh khu phố mà không bị quá khác biệt hay kệch cỡm. Thay vào đó là sự hài hòa ăn nhập một cách hoàn hảo với tổng thể kiến trúc không gian chung, tạo cảm giác an bình khi ở trong ngôi nhà.

Cùng với đó là sự thuận tiện đồng điệu trong thiết kế nhà và thói quen sử dụng sinh hoạt của người việt vô cùng ăn khớp với nhau khiến cho việc sinh hoạt trong căn nhà cấp 4 - 120m2 trở nên thuận tiện dễ dàng. Chi tiết bản thiết kế cũng như đánh giá về thiết kế của căn nhà sẽ được tiết lộ trong bài viết dưới đây. Đầu tiên mời quý vị điểm qua những ưu điểm về thiết kế và lý do gia chủ lựa chọn mẫu thiết kế này cho ngôi nhà của mình.

147 Mẫu Thiết Kế Nhà Cấp 4 Kiến Trúc Hiện Đại
Đầu tiên về thu nhập của gia đình anh Trọng thuộc kiểu mẫu của đa số các gia đình trong xã hội hiện nay mà chúng ta thường bắt gặp nhất , mỗi tháng 2 vợ chồng anh kiếm được xấp xỉ 20 triệu đồng, trừ chi phí sinh hoạt thì còn tích góp được một số vốn để xây nhà vì vậy với mức chi phí xây dựng hợp lý cho những mẫu nhà cấp 4 4 phòng ngủ 1 phòng khách và 1 phòng thờ là sự lựa chọn vô cùng hợp lý của gia đình anh.
Cùng với đó gia đình anh hiện có 2 vợ chồng, 1 bé trai và chị gái cần sử dụng 3 phòng ngủ và thêm 1 phòng ngủ cho khách đến thăm gia đình hoặc sau này thuê giúp việc vì vậy lựa chọn thiết kế căn nhà cấp phong cách Châu Âu với 4 phòng ngủ trở thành lựa chọn hàng đầu của gia đình anh vì tính phù hợp của kiến trúc.

Yêu thích phong cách tinh tế nhưng vẫn muốn mang một nét hơi hướng cổ điển một chút để có thêm phần hoài niệm sau cùng thì đây chính là mẫu thiết kế nhà được anh chọn và hài lòng nhất. Tuy có thiết kế tối giản tuy nhiên kiểu nhà đẹp hiện đại tối giản lại mang đầy đủ tiện nghi cho gia đình cũng như rất phù hợp với nếp sinh hoạt và thói quen của các thành viên trong gia đình. Sau khi được hoàn thiện nội ngoại thất căn nhà mang nét đẹp trang nhã được rất nhiều người khen ngợi về sự tinh tế trong thiết kế của căn nhà ….

25+ Phương Án Thiết Kế Nhà Cấp 4 4 Phòng Ngủ đẹp
Phần sơn và mái ngói được gia chủ lựa chọn tông màu kem và xám, một sự kết hợp kinh điển của thời đại phục hưng mà còn mãi được ưa chuộng cho giới ngày nay. sự kết hợp vô cùng nhẹ nhàng đạt đến đỉnh cao của sự tinh tế đó là đơn giản. Chính sự kết hợp của 2 tông màu hòa quyện với phần thiết kế căn nhà mang một chút phong cách cổ điển làm cho căn nhà trở nên trang nhã tinh tế.
Đội ngũ tư vấn, kiến trúc sư, thiết kế ngoại thất chúng tôi nhanh chóng phác thảo dựa theo mong muốn và nhu cầu của chủ nhà. Nhận được sự chấp thuận của gia đình, bản thiết kế nhà cấp 4 phong cách Châu Âu đã nhanh chóng được bắt tay vào xây dựng và hoàn thiện chỉ trong vòng hơn 3 tháng
